Карта

Продается коттедж/дом: Тольятти, Тимофеевка, Цветочная

28

Характеристики

Дата подачи:
06.05.2023
Дата редактирования:
06.04.2026
Регион:
Самарская область
Город:
Тольятти
Район:
Ставропольский
Микрорайон:
Тимофеевка
Адрес:
Цветочная
Этаж:
2
Материал стен:
Блочные
Площадь дома:
186
Площадь участка в сотках:
3.7
Степень готовности:
Жилой
Просмотров:
565
Цена
6 800 000 р.

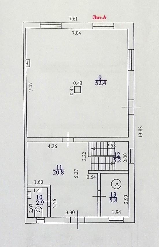
Описание

Уютный благоустроенный дом блочной застройки. На первом этаже большая кухня-гостиная 52 кв.м., котельная, гардероб, с/у. Пол с подогревом, плитка. Потолки - гипсокартон. Имеется большой погреб. На втором этаже три спальные комнаты, ванная. Имеется два выхода: на улицу и во двор. Есть сарай, заезд для двух авто. Хорошие доброжелательные соседи. См.фото.

  • Документы готовы
  • Газ
  • Вода
  • Электричество
  • Мебель
  • С/У в доме

Контакты

Наталья Астраханцева
89270223580
Атриум *
8(8482)48-55-22

*За достоверность информации об объекте отвечает рекламодатель!

Карта

Реклама