Карта

Продается коттедж/дом: Тольятти, Ягодное, Ново-Полевая 27В

21

Характеристики

Дата подачи:
21.03.2025
Дата редактирования:
24.02.2026
Регион:
Самарская область
Город:
Тольятти
Район:
Ставропольский
Микрорайон:
Ягодное
Адрес:
Ново-Полевая 27В
Этаж:
1
Материал стен:
Блочные
Площадь дома:
150
Площадь участка в сотках:
10
Степень готовности:
Жилой
Просмотров:
205
Цена
15 750 000 р.

Описание

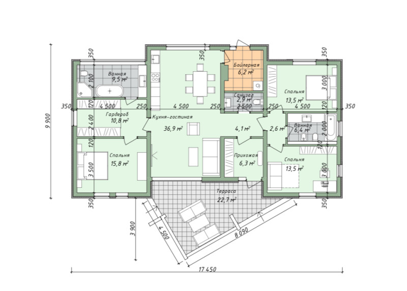
Подходит под СЕМЕЙНУЮ и СЕЛЬСКУЮ ипотеку. В центре села Ягодное, рядом школа, администрация, магазины, транспортная доступность. Планировка: 3 комнаты, 3 санузла и кухня-гостиная 31 кв.м., с панорамным остеклением и выходом на террасу. Мастер-спальня с прострной гардеробной и полноценной ванной комнатой. Внутренняя отделка предчистовая. Система теплый пол. На участке парковка под автомобиль. Вода скважина, канализация - выгребной колодец объемом 6 кб.м. Конструктив дома: фундамент - свайно-ростверковый с утеплением, глубиной 2м. Стены блок с утеплением, крыша: фальцевая кровля

  • Пустая
  • Документы готовы
  • Газ
  • Вода
  • Электричество
  • Насаждения
  • С/У в доме
  • Круглогодично

Контакты

Марина Владимировна
89278917317
Домушка *
8(8482)62-18-88

*За достоверность информации об объекте отвечает рекламодатель!

Карта

Реклама