Карта

Продается коттедж/дом: Тольятти, Верхние Белозёрки, Калинина 11

Характеристики

Дата подачи:
16.04.2026
Дата редактирования:
16.04.2026
Регион:
Самарская область
Город:
Тольятти
Район:
Ставропольский
Микрорайон:
Верхние Белозёрки
Адрес:
Калинина 11
Этаж:
2
Материал стен:
Кирпич
Площадь дома:
471
Площадь участка в сотках:
22
Степень готовности:
Жилой
Просмотров:
33
Цена
12 000 000 р.

Описание

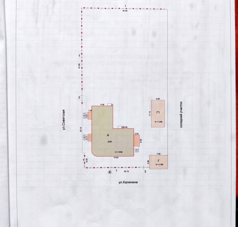
"Купеческий дом" в центре села. В народе называют "Дом быта". Идея такова, что часть дома по ул. Калинина площадью 283,9 кв.м. адаптирована под коммерческие помещения, которые сдаются в аренду.. А другая половина дома площадью 187,9 кв.м., по ул. Советской, построена для жилья. В ней сейчас ведутся отделочные работы. Также рядом с жилой половиной находится гараж на 3 автомобиля, и на участке есть хозблок-склад. Участок угловой, что очень удобно при таком комбинированном использовании.. Здание хорошо тем, что не имеет подвала. У него высокие потолки 2.9-3 м, широкие оконные проемы, два входа, санузлы на каждом этаже В коммерческой части - большое количество выводов под раковины, так как изначально планировалось создать медицинский центр. Между коммерческой и жилой частью находится металлическая дверь, установленная согласно пожарным нормам. Все коридоры широкие.Помещения 1го этажа сданы в аренду под услуги населению. В жилой половине: на 1 этаже - тамбур, гостиная, ванная комната, столовая, кухня с выходом на участок. а на 2 этаже - лоджия, 4 большие комнаты, в одной из них подведены сети для оборудования санузла. Котельная находится в подвале на кухне. Дом полностью подключен к наружным сетям, документы на собственность оформлены, подходит под ипотеку как жилье.

  • Документы готовы
  • Газ
  • Вода
  • Электричество
  • С/У в доме

Контакты

Петинова Людмила Олеговна
89272684457

*За достоверность информации об объекте отвечает рекламодатель!

Карта

Реклама