8(8482) 20-34-34
8(8482) 51-71-42
info@volgainfo.net
Коммерческая недвижимость: Продажа в Тольятти, Мира 77
- Дата подачи:
- 20.11.2025
- Дата редактирования:
- 27.04.2026
- Регион:
- Самарская область
- Город:
- Тольятти
- Район:
- Центральный
- Адрес:
- Мира 77
- Тип сделки:
- Продажа
- Тип объекта:
- Общепит
- Назначение:
- Ресторан
- Этаж:
- Первый
- Площадь общая:
- 824
- Площадь частями:
- 0
- Цена за кв. м.
- 57 т. р.
- Просмотров:
- 147
- Цена
- 47 000 000 р.
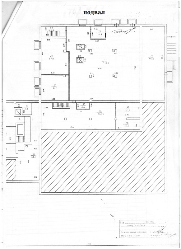
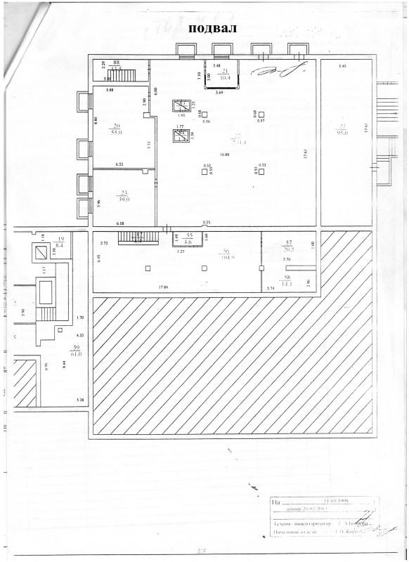
Продается помещение бывшего ресторана в гостинице "Звезда жигулей" на 1 этаже. Большой зал 353кв.м, есть кухонная зона, хоз. помещения, с/у.
- Интернет
- Телефон
- Первая линия домов
- Отдельный вход
- Свой с/у
- Действующее
Ольга Викторовна
89084081133
*За достоверность информации об объекте отвечает рекламодатель!
Закрыть
ООО "РАДВЕР" ИНН:6321344212
erid 2VtzqubP2wg
Закрыть
АН ГЛОБАЛ-НЕДВИЖИМОСТЬ ИНН: 6321288825
erid 2VtzqvNvBxE
Официальный партнер
Этот сайт использует файлы cookie для улучшения вашего пользовательского опыта. Продолжая использовать сайт, вы соглашаетесь на их использование.
Подробнее