8(8482) 20-34-34
8(8482) 51-71-42
info@volgainfo.net
Продается 1-к квартира Тольятти, Чайкиной Л. 66
Дата подачи:
03.04.2025
Дата редактирования:
23.10.2025
Регион:
Самарская область
Город:
Тольятти
Район:
Комсомольский
Улица: Чайкиной Л.
Номер дома: 66 Комнат:
1
Этаж: 5/8 Планировка: Улучшенная
Материал стен: Кирпич
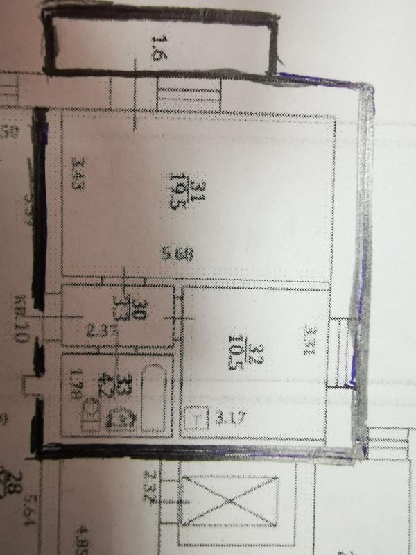
Площадь общая: 38.7
Площадь жилая: 19.3 Площадь кухни: 10.5
Санузел: Совмещенный Балкон: Лоджия
Состояние: Черновая отделка
Вариант продажа
Просмотров:
163
Цена
3 900 000 р.
Квартира в кирпичном доме с черновой отделкой, тёплая, просторная, пластиковые окна, качественные батареи, счётчики на воду и электроэнергию, входная дверь.. Подходит под семейную ипотеку под 6% . Дом сдан и введён в эксплуатацию.Рядом рынок, магазины. школа, детский сад, остановки.
Изолированная
Железная дверь
Наталья Артюшевская
89272682092
*За достоверность информации об объекте отвечает рекламодатель!
Закрыть
ООО "РАДВЕР" ИНН:6321344212
erid 2VtzqubP2wg
Закрыть
АН ГЛОБАЛ-НЕДВИЖИМОСТЬ ИНН: 6321288825
erid 2VtzqvNvBxE
Официальный партнер
Этот сайт использует файлы cookie для улучшения вашего пользовательского опыта. Продолжая использовать сайт, вы соглашаетесь на их использование.
Согласен
Подробнее