Карта

Продается 2-к квартира Тольятти, 18Б Итальянский б-р 24

30

Характеристики

Дата подачи:
05.10.2025
Дата редактирования:
06.10.2025
Регион:
Самарская область
Город:
Тольятти
Район:
Автозаводский
Микрорайон:
18Б
Улица:
Итальянский б-р
Номер дома:
24
Комнат:
2
Этаж:
3/10
Планировка:
Улучшенная
Материал стен:
Кирпич
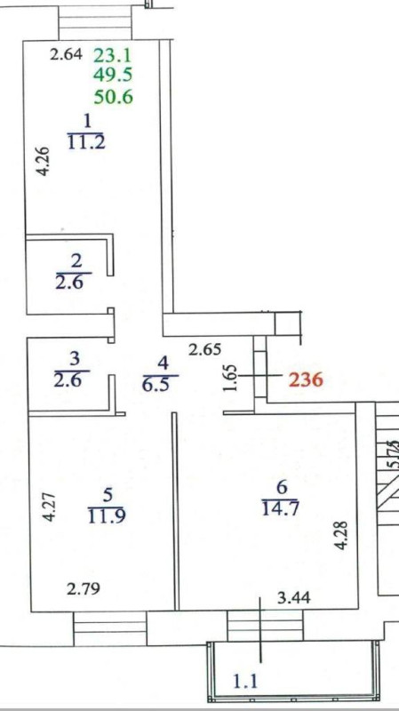
Площадь общая:
50.6
Площадь жилая:
23
Площадь кухни:
14.7
Санузел:
Раздельный
Балкон:
Балкон
Состояние:
Отличное
Вариант
продажа
Просмотров:
144
Цена
7 000 000 р.

Описание

Идеальная Квартира для Семьи в Лучшем ЖК Тольятти! Ищете идеальное место для вашей растущей семьи? Мечтаете о комфорте, безопасности и пространстве, где каждый найдет себе уголок? Тогда эта квартира в ЖК — именно то, что вы искали!Почему ЖК — это выбор №1 для вашей семьи? Дом с огороженной территорией, уютные двор-парки на территории, фонтаны, зона барбекю и площадка для выгула животных на территории ЖК. Квартира просторная, с большой кухней 12 кв м- мечта хозяйки. Оставляем новую встроенную кухню и варочную панель. Документы готовы для сделки, рассмотрим все сертификаты. Звоните и приходите на просмотр!

  • Встроенная кухня
  • Изолированная
  • Железная дверь
  • Евро окна
  • Документы готовы

Контакты

Солопова Людмила
89178219766

*За достоверность информации об объекте отвечает рекламодатель!

Карта

Реклама