8(8482) 20-34-34
8(8482) 51-71-42
info@volgainfo.net
Продается 2-к квартира Тольятти, 17А 40 лет Победы 17
- Дата подачи:
- 10.11.2025
- Дата редактирования:
- 18.12.2025
- Регион:
- Самарская область
- Город:
- Тольятти
- Район:
- Автозаводский
- Микрорайон:
- 17А
- Жилой комплекс:
- Лесная Слобода
- Улица:
- 40 лет Победы
- Номер дома:
- 17
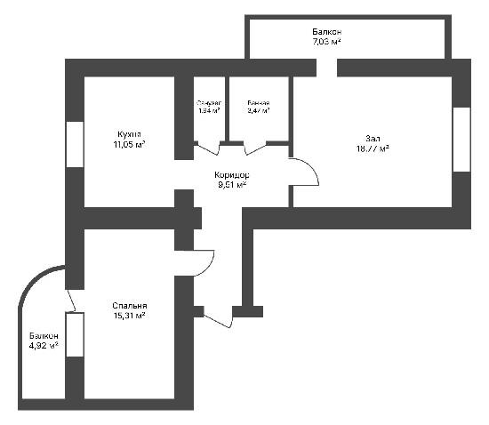
- Комнат:
- 2
- Этаж:
- 5/9
- Планировка:
- Улучшенная
- Материал стен:
- Кирпич
- Площадь общая:
- 57.5
- Площадь жилая:
- 25
- Площадь кухни:
- 12
- Санузел:
- Раздельный
- Балкон:
- 2 балкона
- Состояние:
- Евростандарт
- Вариант
- продажа
- Просмотров:
- 89
- Цена
- 8 500 000 р.
отличная отделка, два конд. кухонный гарнитур, две лоджии, можем оставить почти всё...
Александр Дмитриевич
89278914209
*За достоверность информации об объекте отвечает рекламодатель!
Закрыть
ООО "РАДВЕР" ИНН:6321344212
erid 2VtzqubP2wg
Закрыть
АН ГЛОБАЛ-НЕДВИЖИМОСТЬ ИНН: 6321288825
erid 2VtzqvNvBxE
Официальный партнер
Этот сайт использует файлы cookie для улучшения вашего пользовательского опыта. Продолжая использовать сайт, вы соглашаетесь на их использование.
Подробнее