Карта

Продается 1-к квартира Тольятти, 20 Льва Яшина 16

15

Характеристики

Дата подачи:
10.02.2026
Дата редактирования:
25.03.2026
Регион:
Самарская область
Город:
Тольятти
Район:
Автозаводский
Микрорайон:
20
Улица:
Льва Яшина
Номер дома:
16
Комнат:
1
Этаж:
8/10
Планировка:
Макаровская
Материал стен:
Панель
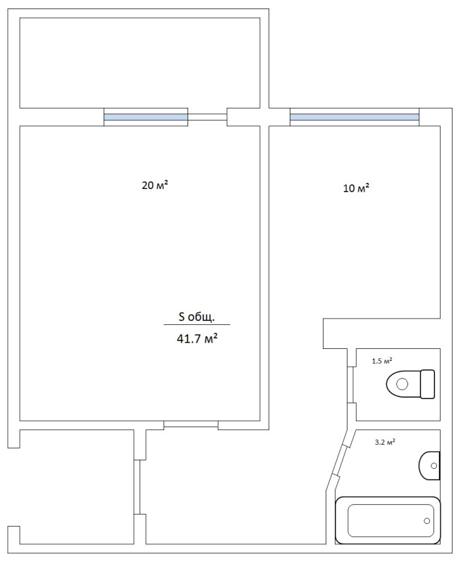
Площадь общая:
41.7
Площадь жилая:
20
Площадь кухни:
10
Санузел:
Раздельный
Балкон:
Балкон
Состояние:
Очень хорошее
Вариант
продажа
Просмотров:
174
Цена
6 000 000 р.

Описание

Продаётся замечательная, светлая, просторная квартира! Очень теплая! Общая площадь -41,7 кв.м + 6 кв.м балкон. Балкон застеклён и отделан! Макаровская планировка, высота потолков 3 метра, санузел раздельный. В квартире заменены окна, батареи от застройщика, хороший ремонт в комнате. В квартире остается шкаф-купе, встроенная кухня с техникой (варочная панель, духовой шкаф, вытяжка), мебель в ванной комнате, стиральная машина, ванная с гидромассажем!!! Остаётся в квартире кондиционер. Двор огорожен, рядом лес, школа "Галактика", ТЦ Мадагаскар, ТЦ Лента, ТЦ Аврора, остановки общественного транспорта.

  • Кондиционер
  • Встроенная кухня
  • Счетчики
  • Железная дверь
  • Евро окна
  • Пустая
  • Документы готовы
  • Шкаф-купе

Контакты

Качелаева Тамара
89278934321
ФЛ 63-30-24 *
8(8482)63-30-24

*За достоверность информации об объекте отвечает рекламодатель!

Карта

Реклама