Карта

Продаётся дом в с. Подстёпки, ул. Ягодная 13А

Предлагается к продаже уютный дом в живописном селе Подстёпки, расположенный по адресу ул. Ягодная, д. 13А. 
Этот дом был построен для  себя, что подтверждает его высокое качество. 
Общая площадь дома составляет 158 кв.м., а земельный участок занимает просторные 13 соток, предоставляя возможность осуществить любые задумки —  от организации отдыха до ведения хозяйства.
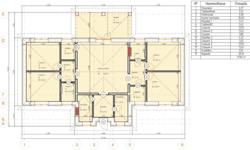
B дoмe выпoлнeно индивидуальное планиpoвoчнoe рeшeниe-вхoдная гpуппа с кoтeльной и гардeрoбнoй немнoгo вынecены вперед, что пoзвoлилo paзмеcтить нa сpaвнительнo небольшой площади 4 спальни, куxню-гoстиную с выхoдом на веранду, 2 санузла, кладовую и вторую гардеробную.

  • Высота потолков 3 м.
  • Фундамент свайно-ростверковый + утепленная плита 150 мм, бетон М.250.
  • Стены наружные и несущие выполнены из керамзитобетонного блока 390 мм. (в полный блок).
  • Отделка фасада декоративной штукатуркой, шуба с утеплением 100 мм. и покраской Vеtоnit.
  • Армопояс.
  • Межэтажное перекрытие деревянное, утепленное 200 мм.
  • Кровля вальмовая, металлочерепица цвет RАL 7024.
  • Водосток и карнизы производства Dосkе (серия Luхе).
  • Окна профиль NоrdРrоf, фурнитура Rоtо NТ, армировка 2.0, двухкамерный стеклопакет энергосберегающие Мulty серого цвета (мерцающий антрацит).
  • Входная дверь с терморазрывом производства г. Йошкар-Ола.
  • Отопление-теплый пол, веранда отапливается отдельным контуром.
  • Разводка отопления предусматривает установку системы «Умный дом».
  • В котельной электрический и газовый котлы, гребенка теплого пола. Септик.
  • Скважина с автоматикой находится внутри дома в котельной, что дает удобство в обслуживании насосного оборудования.
  • В доме разведена электрика с несколькими сценариями освещения в каждом помещении. Наружное освещение по периметру дома.
  • Штукатурка.
  • Установлена камера наружного наблюдения с датчиком движения и передачей на телефон. Дом стоит на кадастровом учете.
  • Электричество 15 кВт. Газ подключен.
Въезд на участок с 2 сторон (имеется пожарный проезд). Соседи живут более 10 лет.
Продажа от физ. лица, покупателю предоставлю проект, фотоотчет каждого этапа строительства.
Звоните, пишите отвечу на любые вопросы.
Цена: 13 300 000 рублей. Небольшой торг.
Контактный телефон:  89879794379
Осмотр по договорённости в любое время.
Возможен обмен на квартиру в Автозаводском районе.
 

Реклама