8(8482) 20-34-34
8(8482) 51-71-42
info@volgainfo.net
Продается коттедж/дом: Тольятти, Ягодное, Александровский
- Дата подачи:
- 30.10.2025
- Дата редактирования:
- 06.02.2026
- Регион:
- Самарская область
- Город:
- Тольятти
- Район:
- Ставропольский
- Микрорайон:
- Ягодное
- Адрес:
- Александровский
- Этаж:
- 1
- Материал стен:
- Блочные
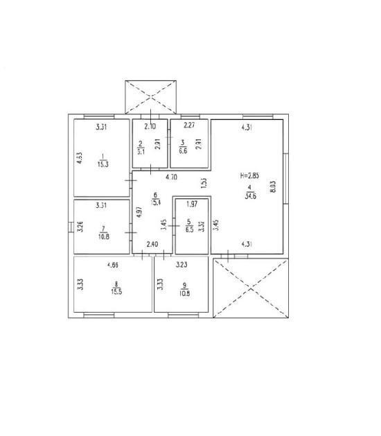
- Площадь дома:
- 128
- Площадь участка в сотках:
- 10
- Степень готовности:
- Жилой
- Просмотров:
- 115
- Цена
- 9 000 000 р.
Дом 128 кв.м. , участок 10 сот. , предчистовая отделка , ванна ( плитка куплена ), котельная стены -декоративная штукатурка, теплые полы, фундамент монолитный, утеплен, крыша металлочерепица, утеплена 200мм., отмостка . Хозпостройка на участке 6х3м. из блока,теплица. Бонус.
*За достоверность информации об объекте отвечает рекламодатель!
Закрыть
ООО "РАДВЕР" ИНН:6321344212
erid 2VtzqubP2wg
Закрыть
АН ГЛОБАЛ-НЕДВИЖИМОСТЬ ИНН: 6321288825
erid 2VtzqvNvBxE
Официальный партнер
Этот сайт использует файлы cookie для улучшения вашего пользовательского опыта. Продолжая использовать сайт, вы соглашаетесь на их использование.
Подробнее