8(8482) 20-34-34
8(8482) 51-71-42
info@volgainfo.net
Продается 3-к квартира Тольятти, 20 Рябиновый б-р 3
Дата подачи:
15.08.2025
Дата редактирования:
14.10.2025
Регион:
Самарская область
Город:
Тольятти
Район:
Автозаводский
Микрорайон:
20
Улица: Рябиновый б-р
Номер дома: 3 Комнат:
3
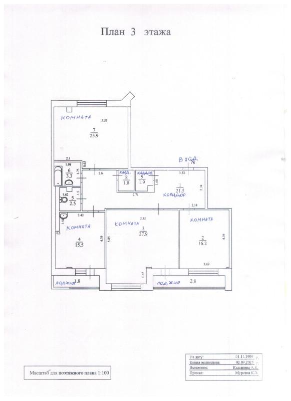
Этаж: 3/9 Планировка: Элитная
Материал стен: Кирпич
Площадь общая: 121
Площадь жилая: 70 Площадь кухни: 16
Санузел: Раздельный Балкон: Лоджия
Состояние: Удовлетв-но
Вариант продажа
Просмотров:
155
Цена
10 000 000 р.
Просторная,светлая квартира в кирпичном доме(ВСТАВКА).Три большие комнаты и кухня 16 метров.Комнаты изолированные. Две кладовки.Две лоджии на кухне и на две комнаты.Чистая продажа.Один собственник.Рядом "Мадагаскар",д/с,школы и т.д.
Счетчики
Изолированная
Железная дверь
Ключи в офисе
Пустая
Документы готовы
Шкаф-купе
Оксана Владимировна
89171344577
*За достоверность информации об объекте отвечает рекламодатель!
Закрыть
ООО "РАДВЕР" ИНН:6321344212
erid 2VtzqubP2wg
Закрыть
АН ГЛОБАЛ-НЕДВИЖИМОСТЬ ИНН: 6321288825
erid 2VtzqvNvBxE
Официальный партнер
Этот сайт использует файлы cookie для улучшения вашего пользовательского опыта. Продолжая использовать сайт, вы соглашаетесь на их использование.
Согласен
Подробнее